NOTE: High quality complete project slides are available here.
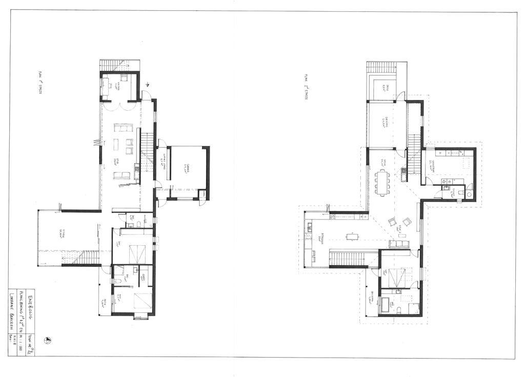
This project totalled 14 hand drafted technical drawings of a two STORY private residence, however, I have included only a sample of the various drafts here.
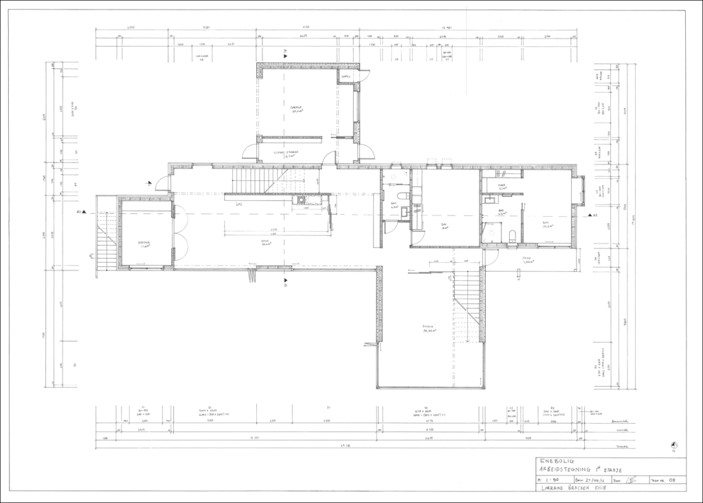
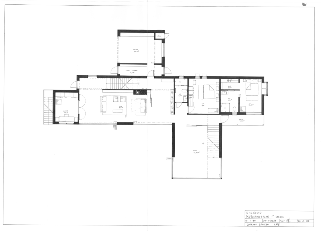
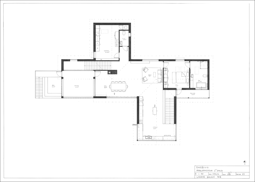
We were given a basic layout of an existing building and able to shift or remove certain interior walls as well as add elements and apply our own ideas to parts of the roof and upper level. I divided the building into specific zones, such as; inside/ outside, private/ public, work/ play, socialising and storage. Concentrating the bedrooms in one wing, meant that I could open up the middle of the house on each level for public space. I used the original lines of the building to elongate the space and make clean and easy traffic zones and connections between the inside and outside. Furthermore, widening the angle of the A-frame roof allowed more usable space on the upper level.
The complete scheme included: Plans of both floors 1:100, Floor plan of ground floor 1:100, Working plan of each floor including dimensions, insulation, material details etc. 1:50, Furniture plans of each floor 1:50, Lighting plan of the first floor 1:50, Four Interior Elevations 1:20, and 2 Sections 1:100.








